

![]() |



The EJE*-S/C Series enclosures Divided into Junction Box and Control Station,EJE*-S/C Series enclosures arenormally installed in the industrial plants, with potential hazardous atmospheres of gases and combustible dusts,and therefore classified as Zone 1 – 2 – 21 – 22.These enclosures are primarily used with the function of:
Derivation end/or of cables collecting from the field and to the control rooms, for analogic signals and / or digitalsignals end / or measure signals what termocouples, signals 4 ÷ 20 mA etc. etc.
Clearing barrier signals and 7 or of transposition signals from field to control room what Fild-Bus; Mod-Bus andProfi-Bus.
Control and start-stop of apparatus as motors, fans, pumps etc. etc
Reading of physical greatness which flow, level, pressure, temperature,current, voltage, frequency, speed controletc. etc.
Service hotline:
0523-88317000 88318288


depending on type of terminal and explosions-proof components used.

Accessories and special execution on request
? Special hardware in stainless steel AISI 316 A4
? Set of nut and basket for restoration of the IP66 degree of protection
? ANSI B.20.1 NPT or GK UNI 6125 adapters with metric
? Unified joining flange for various enclosures, inclusive of gaskets for IP 66 degree of protection and stainless steel Inox AISI 316L fixing screws
? Stainless steel internal plate
? Insulation material internal plate
? Passing earthing bolt
? Hinges
Hubs
?Passing holes, suitable for ISO 261 / ISO 965 Normalized Metric thread



The enclosures may also be manufactured to intermediate sizes. This assumes that any given dimension is notlarger than the respective dimension of the largest enclosure or smaller than the respective dimension of thesmallest enclosure. The power rating applied to a junction box of intermediate size is that of the next smallestenclosure.
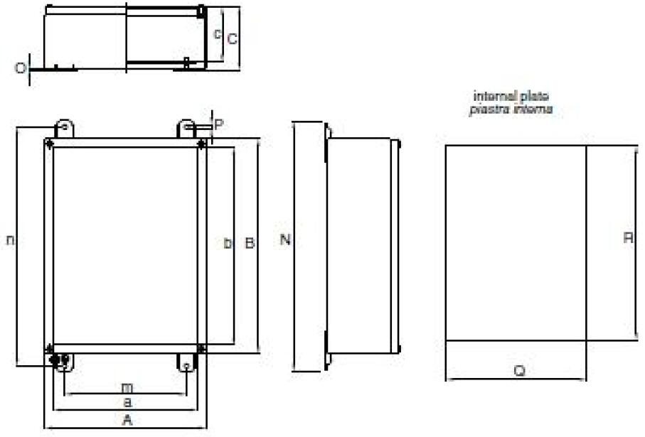
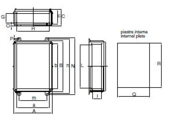
The terminal and components may be used in specified combinations subject to the calculation of maximumdissipated power and the conditions of certification listed. The maximum dissipated powerfor each enclosure isdetailed above.The enclosures can be drilled and taped with the maximum size and maximum number of holes as specified in themanufacturer documents for the use with separately certified cable glands or blanking plugs. Each enclosure isprovided with an internal earthing certified terminal or earthing point. Metal enclosures are provided with anexternal earthing point.
The EJE*-S/C series enclosures have modular dimensions and can be jointed together through a flange thatcontinies to grant the IP protection. With such system we’re able to increase the internal volume available forelectrical installation so to reach the sole space reallly needed.
Please refer to the below table for ordering. If you need more information, please contact our sales representative for assistance. 
Numerals or letters without influence to explosion protection 
|
Please write what you need, we will contact you asap!
Give technical advice within 30 minutes | Provide program design within 24 hours | Send domestic / foreign engineers within 24/72 hours
|
